2-стаен Варна, Възраждане
- 89 600 € 1 422 €/м2
-
175 242 лв.
2 782 лв./м2 - 63 м2 2-стаен
- Код: 369243 84 гледания
Двустаен апартамент – Възраждане, Варна
КОД: 369243
**Продава се Двустаен Апартамент във Варна, Възраждане 1 – Модерен Дом на Топ Цена**
Имоти Премиер Ви предлага уникална възможност да закупите двустаен апартамент в новострояща се сграда в един от най-предпочитаните квартали на Варна – Възраждане 1. Тази изключителна оферта включва възможност за закупуване и обединяване на два апартамента, разположени на пети етаж от общо единадесет етажа, гарантирайки прекрасна гледка и уединение.
– Акт 14 до две седмици
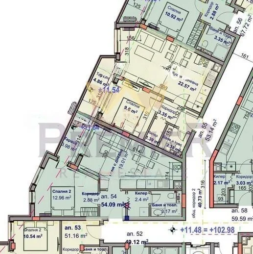
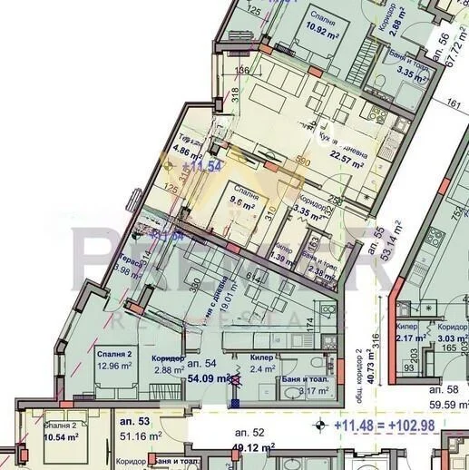
– Обща площ: 63,16 кв.м
– Чиста площ: 54,09 кв.м
Апартаментите са съобразени с нуждите на съвременния начин на живот, като предлагат просторен дневен тракт, уютна спалня, баня с тоалетна, килер и просторен балкон със западно изложение. Сградата разполага с асансьор, който осигурява бърз и лесен достъп до жилищата.
**Предимства на локацията:**
Квартал Възраждане 1 е известен със своята удобна инфраструктура и възможности за живот в удобна градска среда. Районът предлага близост до училища, детски градини, здравни заведения и спирки на градски транспорт. Това го прави изключително подходящ за семейства и хора, търсещи съчетание от градския и зелен начин на живот.
**Допълнителни предимства:**
След Акт 15-16 новите собственици имат възможност да завършат апартаментите частично или изцяло до ключ на преференциални цени, за да създадат уютно и функционално жилище по свой вкус.
Не пропускайте да се възползвате от тази изключителна възможност за инвестиция в бъдещето на вашето семейство или за доходоносно отдаване под наем. Свържете се с нас още днес за повече информация и оглед!
При интерес, моля цитирайте код на обявата 369243
Можете да намерите още страхотни апартаменти в категорията >> Апартаменти Варна.
Направи запитване
Заяви LIVE оглед
Попълни формата за LIVE оглед, а ние ще се свържем с теб!










