Къща Варна, м-т Ракитника
- 249 900 € 1 552 €/м2
-
488 762 лв.
3 036 лв./м2 - 161 м2 Къща
- Код: 380023 142 гледания
МОНОЛИТНА ДВУЕТАЖНА КЪЩА С ДВОР, м-т Ракитника
КОД: 380023
👉ЗАПОЧНАЛО СТРОИТЕЛСТВО
👉МОНОЛИТНА ДВУЕТАЖНА КЪЩА
👉МОРСКА ПАНОРАМА
Имоти Премиер предлага за продажба двуетажна къща с двор и две паркоместа, част от затворен комплекс от 8 самостоятелни къщи, разположени в общ парцел. Имотът се намира в м-т Ракитника, само на 300 м от главен път, с бърз и удобен достъп.
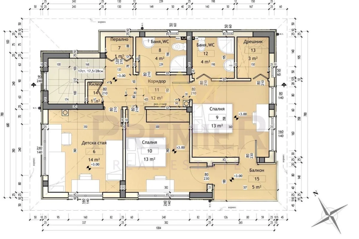
Къщата е с РЗП 161 кв.м и функционално разпределение, подходящо за целогодишно живеене.
Първи етаж:
– Входно антре;
– Просторна дневна с кухненски бокс и трапезария (37м2) с излаз към широка веранда;
– Спалня/кабинет (10м2);
– Баня с тоалетна и килер
Втори етаж:
– Три спални (14м2, 13м2, 13м2) като едната е със собствена баня;
– Допълнителна тоалетна и 2 сервизни помещения
– Балкон към две от стаите
Благоприятно изложение обхващащо югозапад и югоизток. От втория етаж се разкрива морска панорама.
Къщата се продава завършена до степен БДС. Дворът е с площ 250 кв.м, като са включени две открити паркоместа.
Достъпът е лесен и удобен, намира се на ~ 4 км южно от кв. Галата, с асфалтоф достъп от Варна, близо до плаж Черноморец, Паша дере и местностите Боровец Юг и Фичоза. Районът е водоснабден, електрифициран и с редовен градски транспорт.
В близост ще откриете:
– автобусна спирка на 550 м
– супермаркет на 800 м
Комплексът е в начален етап на строителство, с издадено разрешение за строеж, открита строителна площадка и извършена първа копка.
Имот с отличен потенциал за спокоен живот сред природа, комбиниран с бърз достъп до града и морето.
Огледи се организират в удобно за вас време, след предварителна уговорка.
Съдействаме при нужда от банково кредитиране.
Код на офертата: 380023
Можете да намерите още страхотни апартаменти в категорията >> Апартаменти Варна.
Направи запитване
Заяви LIVE оглед
Попълни формата за LIVE оглед, а ние ще се свържем с теб!















