2-стаен Варна, м-т Сотира
- 90 000 € 1 286 €/м2
-
176 025 лв.
2 515 лв./м2 - 70 м2 2-стаен
- Код: 350198 2180 гледания
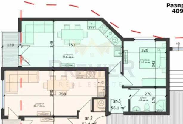
ДВУСТАЕН- ЮЖЕН
КОД: 350198
град Варна, м-т Сотира, 70 кв.м, 3-ти ет. от 7, Тухла 2024 г., ИМОТИ ПРЕМИЕР има удоволствието да предложи на своите клиенти двустаен апартамент в местност Сотира до МБАЛ ‘Света Марина’. Възможността за спокоен живот сред природа и зеленина само на броени минути от централните точки на град Варна е вече реалност. Луксозна жилищна сграда , която се намира на пешеходно разтояние от Варненския технически университет, а от апартаментите ѝ се разкриват разкошни панорамни гледки към морето и природата в местността. Апартамента се състои от дневна с кухненска част, спалня, баня с тоалет, входно антре и тераса, ИЗЛОЖЕНИЕ ЮГ. Жилището ще бъде издадено по БДС! Ние от екипа на ИМОТИ ПРЕМИЕР ще Ви помогнем в търсенето на мечтаното от Вас жилище като се ангажираме да получите професионални съвети, както и изрядни документи след пълна проверка на имота. При желание на клиента съдействаме за отпускане на банков кредит при най-изгодни условия. Разчитайте на нашата подкрепа до самото финализиране на сделката!
Код на обявата: 350198
Можете да намерите още страхотни апартаменти в категорията >> Апартаменти Варна.
Направи запитване
Заяви LIVE оглед
Попълни формата за LIVE оглед, а ние ще се свържем с теб!







