Гараж Варна
- 13 500 € 1 080 €/м2
-
26 404 лв.
2 112 лв./м2 - 12.5 м2 Гараж
- Код: 357574 1176 гледания
Продава
Паркомясто
КОД: 357574
Тип имот:
Гараж
Площ:
12.5 м2
Цена в евро:
13 500 €
Цена в лева:
26 404 лв.
Код на имота:
357574
Район:
Варна
Строителсво:
Година на строителство:
0001 г.
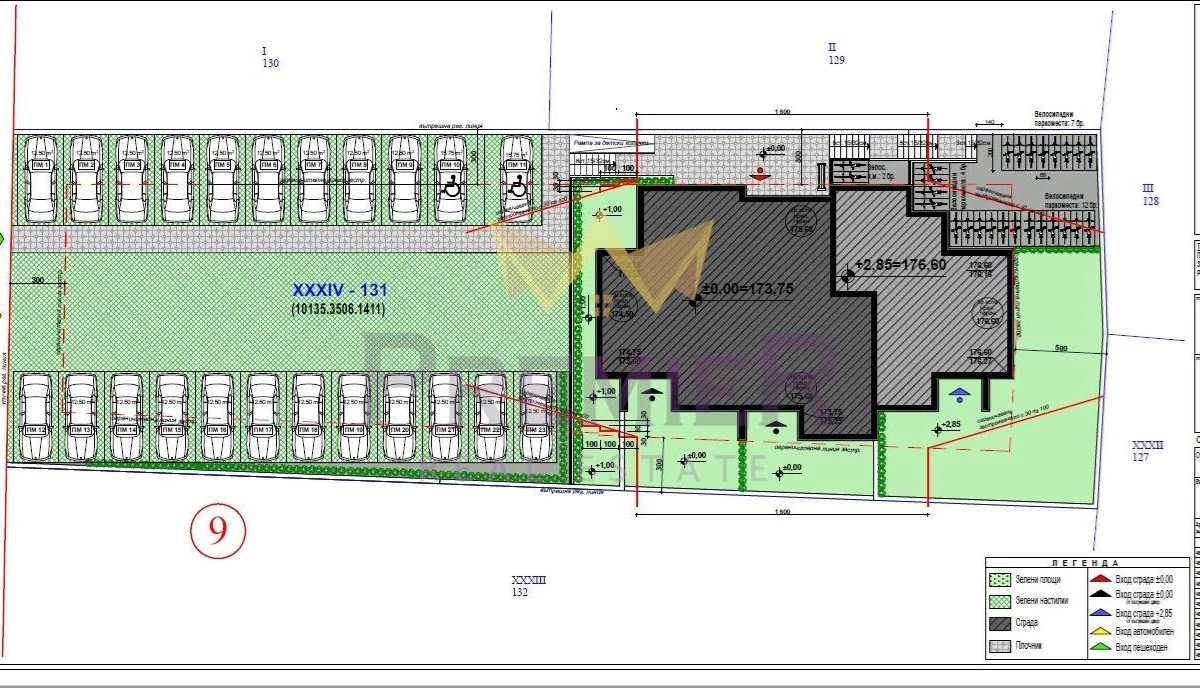
Имоти Премиер предлага на Вашето внимание две открити паркоместа в готова сграда с модерна визия, разположени в тих и спокоен район, подходящ както за лично, така и за инвестиционно ползване. Паркоместата предлагат удобен достъп, комфортно пространство за маневриране и са идеални за тези, които търсят сигурно място за паркиране в района.
• Цена за едно паркомясто: 13 500 евро
• Пакетна цена за двете паркоместа: 26 000 евро
Паркоместата са подходящи за всякакъв тип автомобили. Отлична локация, осигуряваща бърз достъп до основни пътни артерии и жилищни сгради.
КОД НА ОБЯВАТА: 357574
Можете да намерите още страхотни апартаменти в категорията >> Апартаменти Варна.
Варна
Гараж
13 500 € 1 080 €/м2
26 404 лв. 2 112 лв./м2
12.5 м2
1177 гледания
Направи запитване
Заяви LIVE оглед
Попълни формата за LIVE оглед, а ние ще се свържем с теб!
Подобни имоти
Топ обяви на брокера
Подреди по:


















