Къща София
- 360 000 € 1 538 €/м2
-
704 099 лв.
3 009 лв./м2 - 234 м2 Къща
- Код: 353662 1416 гледания
Продава
Къща в гр.Банкя
КОД: 353662
Тип имот:
Къща
Площ:
234 м2
Цена в евро:
360 000 €
Цена в лева:
704 099 лв.
Код на имота:
353662
Район:
София
Строителсво:
Тухла
Година на строителство:
2025 г.
Локално
Паркомясто
Имоти ПРЕМИЕР има удоволствието да Ви представи новострояща се еднофамилна къща в гр. Банкя.
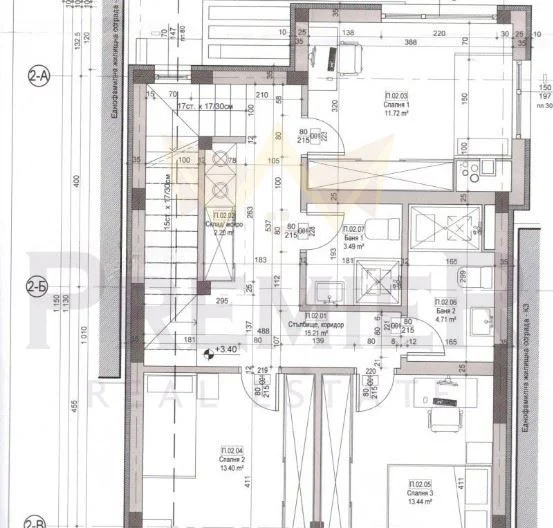
В тази връзка Ви предлагаме комплекс от осем триетажни еднофамилни жилищни сгради в Банкя, известен с лековитите си минерални извори и здравословен планински въздух.Къщите са с площ 235 кв.м и имат следното разпределение:
- Партер- входно антре със стълбище към етажите, всекидневна с трапезария и кухненски бокс, тоалетна;
- 1 Етаж- коридор, три спални, две бани с тоалетна, склад и мокро помещение, балкон.
- 2 Етаж- спалня с дрешник, баня с тоалетна, балкон.
Отоплението е с термопомпа, която ще захранва къщата с топла вода. Осигурени са по два броя паркоместа за всяка от сградите, всички на ниво терен. Дворът е с площ 150 кв.м и е с озеленяване 60% на целия комплекс.
КОД НА ОБЯВАТА: 353662
София
Къща
360 000 € 1 538 €/м2
704 099 лв. 3 009 лв./м2
234 м2
1417 гледания
Направи запитване
Заяви LIVE оглед
Попълни формата за LIVE оглед, а ние ще се свържем с теб!
Подобни имоти
Топ обяви на брокера
Подреди по:










