Къща Варна, м-т Евксиноград
- 750 000 € 1 682 €/м2
-
1 466 873 лв.
3 289 лв./м2 - 446 м2 Къща
- Код: 334076 1758 гледания
Къща в м-ст Евксиноград
КОД: 334076
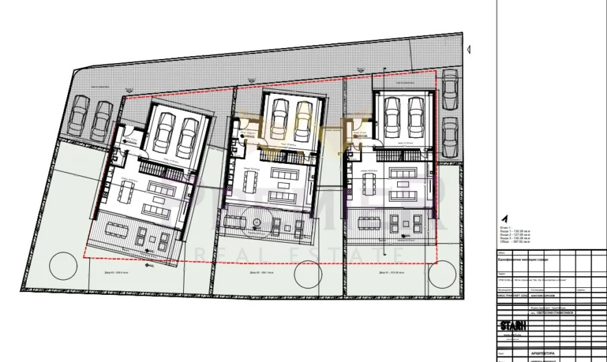
ИМОТИ ПРЕМИЕР представя на Вашето внимание новострояща се къща в близост до резиденция Евксиноград. Разпределението на имота е, както следва: На етаж едно са разположени: входно антре – 14 кв.м., дневен тракт с площ от 50.05 кв.м., двоен гараж 41.92 кв.м, тоалетна 2.8 кв.м и техническо помещение 3.65 кв.м. Конструктивна височина на етажа 3.30м, а светлата височина е 2.95 м. Застроена площ на първи етаж е 130.38 кв.м. На етаж две /кота +3.30/ са разположени: спалня 25.23 кв.м. с баня и тоалетна с площ 9.26 кв.м., баня с тоалетна с площ 8.05 кв.м., коридор 14.96 кв.м, детска стая с площ 17.54 кв.м., втора детска стая с площ 17.69 кв.м. Конструктивна височина на етажа е 3.10 м., а светлата височина е 2.75 м. Застроена площ на втори етаж е 163.82 кв.м. На трети етаж /кота +6.40/ са разположени фитнес зала с площ от 75.37 кв.м., баня с тоалетна 5.94 кв.м. и тераса 58.59 кв.м. Конструктивната височина на етажа е 3.10м, а светлата височина 2.75 м. Застроена площ на трети етаж е 151.3 кв. м. Посочените площи на помещенията по-горе са чистите използваеми. Къщата, която предлагаме е част от проект за три къщи в парцел с площ от 1300 кв.м. Посочената цена е без включен ДДС. В продажба е източната къща /в дясно на снимката/. Около всяка от къщите е предвиден озеленен двор за индивидуално ползване, който е отделен с жив плет. Имотът е със разгърната застроена площ от 446 кв.м. Прилежащият двор е приблизително 400 кв.м. , като около 200 кв.м. остават незастроени. Къщата е изцяло ориентирана на юг. Освен двойният гараж са предвидени и два броя открити паркоместа. Към момента се изгражда грубия строеж. АКТ 14 е предвиден за началото на декември 2022 г. Въвеждането в експлоатация на къщата е предвидено до лятото на 2023 г., като е възможно и по-рано. Степен на завършеност по БДС .
Код на офертата № 334076
Можете да намерите още страхотни апартаменти в категорията >> Апартаменти Варна.
Направи запитване
Заяви LIVE оглед
Попълни формата за LIVE оглед, а ние ще се свържем с теб!













