Магазин Варна, Гръцка махала
- 805 000 € 2 300 €/м2
-
1 574 443 лв.
4 498 лв./м2 - Магазин
- Код: 371961 16 гледания
Продава
371961
КОД: 371961
Тип имот:
Магазин
Площ:
Цена в евро:
805 000 €
Цена в лева:
1 574 443 лв.
Код на имота:
371961
Район:
Гръцка махала
Строителсво:
Година на строителство:
0001 г.
Масивна външна врата
Електричество
Входа се заключва
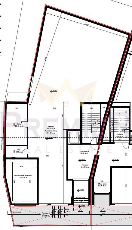
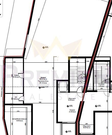
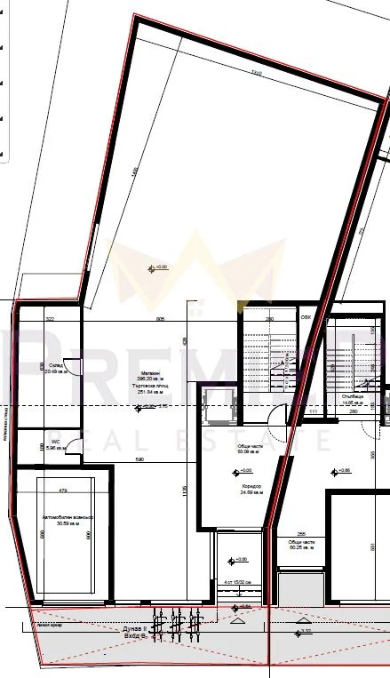
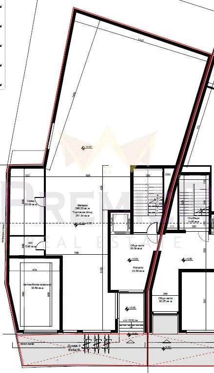
Имоти Премиер предлага на вашето внимание 🏢 просторен магазин в новострояща се сграда – централна част на Варна, на партерно ниво, с площ 350 кв.м, подходящ за разнообразна търговска или обслужваща дейност.
📏 Характеристики на имота:
- Площ: 350 кв.м
- Етаж: партер
- Статут: магазин / търговски обект
- Разпределение: едно голямо търговско помещение с възможност за преграждане, складово помещение, санитарен възел
- Височина: подходяща за големи витрини и максимална експозиция
- Състояние: по БДС (шпакловка, замазка, изградени ВиК и ел. инсталации до тапа)
- Гъвкавост на предназначението: идеален за магазин, офис, шоурум, представителство или заведение
🏗 За сградата:
- Модерен архитектурен стил и висококачествено строителство
- Енергийно ефективни материали
- Луксозно завършени общи части
- Контролиран достъп и удобен вход за клиенти
📍 Локация:
Имотът е разположен в сърцето на Варна, в непосредствена близост до ЖП гара, автобусни спирки, административни сгради, магазини и заведения. Районът е с постоянен поток от хора и отлична транспортна свързаност, което го прави изключително подходящ за успешен бизнес.
№ 371961
Можете да намерите още страхотни апартаменти в категорията >> Апартаменти Варна.
Варна, Гръцка махала
Магазин
805 000 € 2 300 €/м2
1 574 443 лв. 4 498 лв./м2
17 гледания
Направи запитване
Заяви LIVE оглед
Попълни формата за LIVE оглед, а ние ще се свържем с теб!
Подобни имоти
Топ обяви на брокера
Подреди по:





