Сгради Малинова Долина, София
- 0 €
-
0 лв.
- Сгради
- Код: 349586 972 гледания
Жилищна сграда
КОД: 349586
Имоти Премиер представя на Вашето внимание новострояща се сграда в кв. Малинова долина. Сградата се намира на комуникативен и бързоразвиващ се район в близост до Симеоновско шосе, големи вериги магазини, спирки на градски транспорт, детски градини и училища.
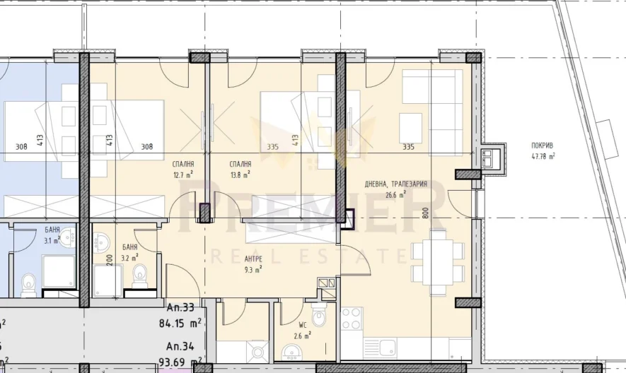
Проектът се изпълнява с висококачествени материали: най-висок клас дограма Pexay-6 камерна,троен стъклопакет, 8 местен асансьор Orona, стълбище с италиански гранит, входна блиндирана врата на всеки апартамент, финошпаклована мазилка. Качеството на строителство и интериорният дизайн,може да бъде видяно във вече построени сгради на инвеститора. Сградата разполага с двустайни, тристайни апартаменти, гаражи и паркоместа за всеки вкус.
Код на обявата: 349586
Направи запитване
Заяви LIVE оглед
Попълни формата за LIVE оглед, а ние ще се свържем с теб!

















