3-стаен Бургас
- 116 997 € 1 182 €/м2
-
228 826 лв.
2 311 лв./м2 - 99 м2 3-стаен
- Код: 380365 98 гледания
Тристаен апартамент в Меден Рудник
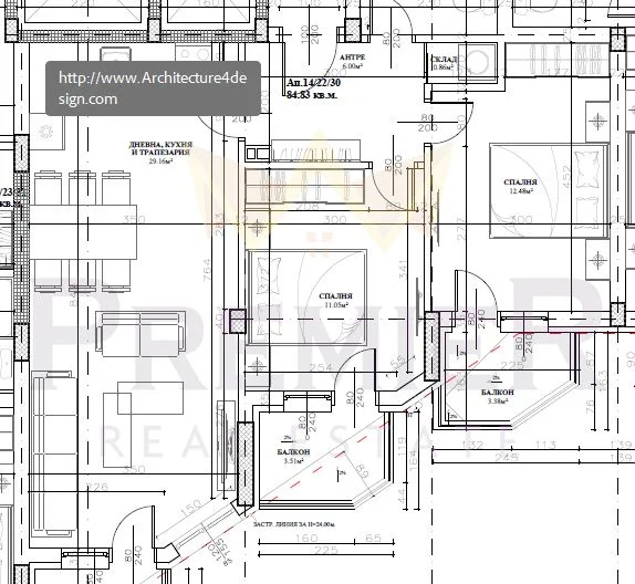
КОД: 380365
Имоти Премиер представя тристаен апартамент с площ от 99 кв.м, разположен на 5-ти етаж от общо 9 в нова модерна сграда в ж.к. Меден рудник, гр. Бургас.
Жилището е с функционално разпределение и отличен потенциал както за лично ползване, така и за инвестиция с цел отдаване под наем.
Имотът ще бъде издаден на тапа, което Ви дава възможност да го завършите и обзаведете изцяло по Ваш вкус и предпочитания.
Сградата е с предстоящ Акт 16 – очакван следващия месец. Изпълнена е с модерна визия и качествени материали, разполага с:
- Два асансьора
- Оградена територия
- Контролиран достъп с портал
- Добре поддържани общи части
Има възможност за закупуване на паркомясто или самостоятелен гараж.
Локацията осигурява удобство и бърз достъп до основни пътни артерии, спирки на градски транспорт, магазини и всичко необходимо за комфортен начин на живот.
За повече информация и оглед – свържете се с нас!
Код на обявата № 380365
Направи запитване
Заяви LIVE оглед
Попълни формата за LIVE оглед, а ние ще се свържем с теб!











