Къща с.Гурмазово, София, област
-
733 865 лв.
2 543 лв./м2 - 375 219 € 1 300 €/м2
- 288.63 м2 Къща
- Код: 355147 496 гледания
Триетажна къща в с. Божурище
КОД: 355147
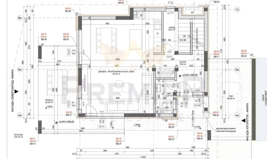
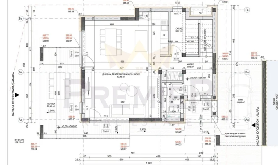
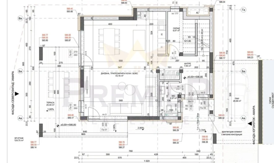
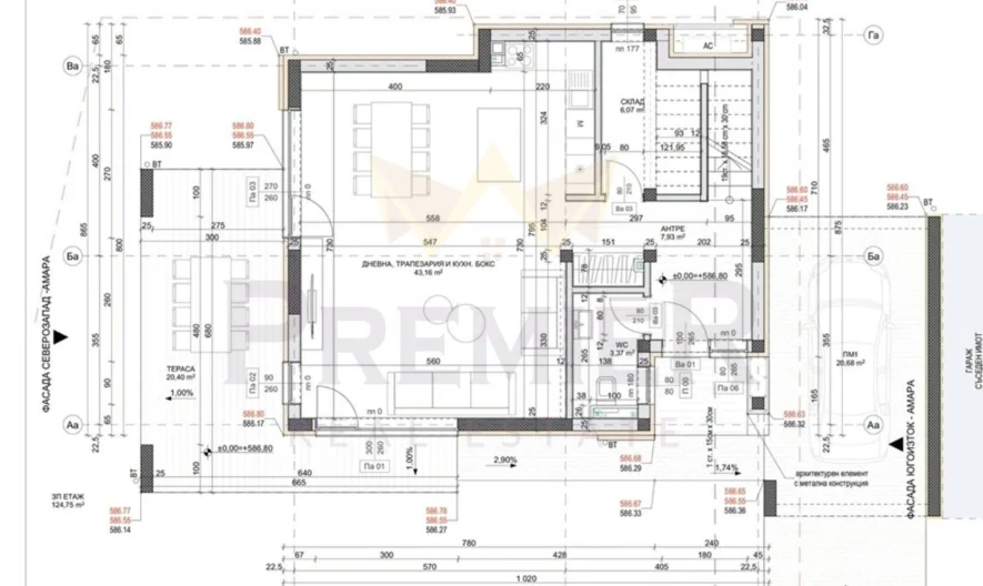
Имоти Премиер Ви предлага тази невероятна самостоятелна еднофамилна къща, разположена в с. Гурмазово на 12 км западно от София и 35 км източно от сръбската граница. Чудесно място за целогодишно живеене, само на 10 минути с кола достигате до редица големи магазини, хипермаркети и други. Страхотно съчетание между спокойствие и уют на живота сред природата и непосредствената близост на всички услуги и възможности на живота в Столицата. Района е известен с това, че е с най-екологично чистия въздух за района на гр. София. В района има училища и детски градини. Уникалното разположение в югозападния район в съседство с гр. Банкя, която също се характеризира с изключително чист въздух, плодородни почви и богата широколистна и борова гора, както и спиращи дъха гледки към Витоша и Стара планина. В близост има конна база, тенис кортове и игрища. Имота е в процес на изграждане и е пред АКТ 14. АКТ 16 се очаква до месец септември на 2024г. РЗП на къщата е 288,63 кв.м., която е разположена на самостоятелно УПИ с 584 кв.м. До имота се достига чрез алея, която води до къщата и покрита зона за паркиране /гараж 20,86 кв.м. Входът на имота е от югозапад и е достъпен от главната алея. Сградата се състои от три надземни етажа свързани по между си от вътрешно стълбище.
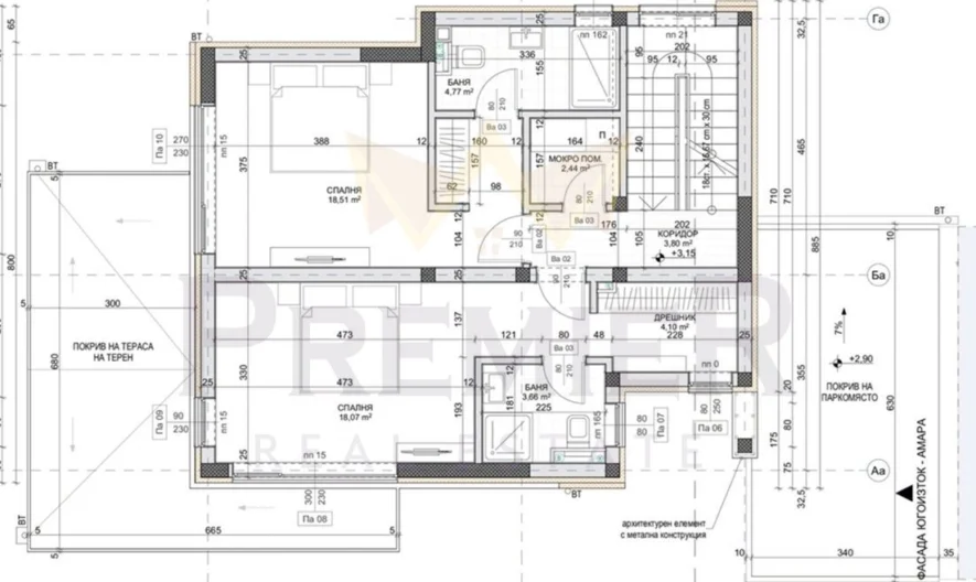
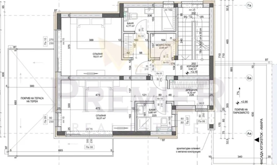
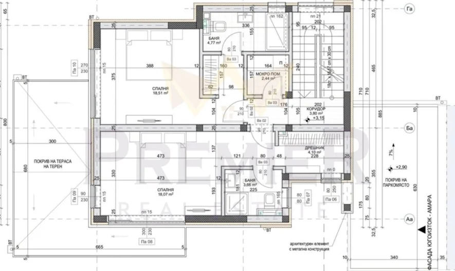
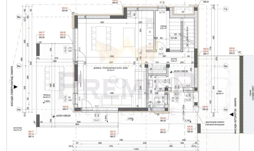
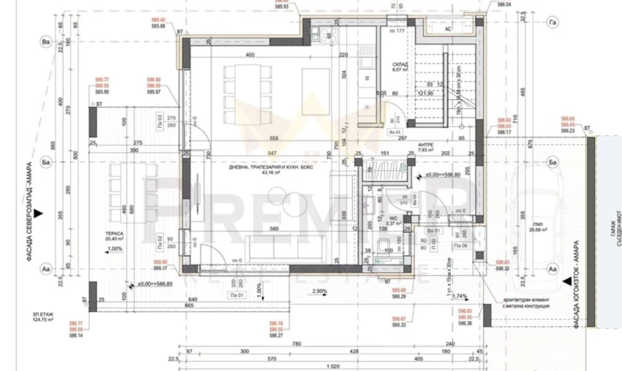
На първия етаж са разположени дневна с трапезария и кухненски бокс, склад и санитарен възел. Застроената площ е 124,75 кв.м. От това ниво има достъп до покрита външна тераса с площ 22,40 кв.м. и директен достъп до озеленена дворна площ 390,75 кв.м.Втория етаж е със застроена площ 81,67 кв.м. Състои се от стълбище, две спални със самостоятелни бани и тоалетни, една от които е с дрешник. Третото ниво е със застроена площ 81,67 кв.м. Състои се от стълбище и една спалня с баня и тоалетна. Пространството може да се преобразува в кабинет/ фитнес или игрална зала за деца. На този етаж има използваема покривна тераса с площ 37,75 кв.м.
Код на Обявата: 355147
Направи запитване
Заяви LIVE оглед
Попълни формата за LIVE оглед, а ние ще се свържем с теб!



















