Къща Бургас, област, с.Черноморец
- 664 830 € 2 490 €/м2
-
1 300 294 лв.
4 870 лв./м2 - 267 м2 Къща
- Код: 367021 462 гледания
Триетажна къща,Черноморец
КОД: 367021
Имоти Премиер предлага за продажба триетажна къща в близост до град Черноморец
АРХИТЕКТУРНО И ФУНКЦИОНАЛНО РЕШЕНИЕ
Meliora Villas включва четири самостоятелни триетажни къщи, разположени до Къмпинг Градина в живописния град Черноморец, само на секунди от плажа с мек и ситен пясък – една от най-красивите плажни ивици на Южното Черноморие. Всяка къща разполага с прилежащ двор за индивидуално ползване и паркомясто, което ги прави подходящи както за ваканционен дом, така и за целогодишно живеене.
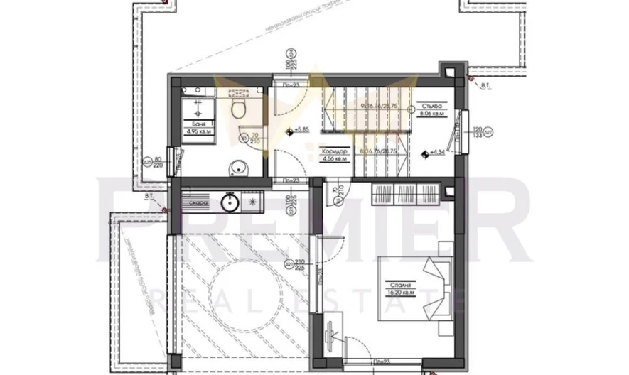
Разпределението на жилищната площ е:
- Кота ±0.00 – входно антре, дневна, трапезария, кухня, склад, котелно, тоалетна, тераса и навес.
- Кота +3.00 – три спални, две бани, мокро помещение, два балкона и лоджия.
- Кота +5.85 – спалня, баня и тераса.
КОМУНИКАЦИИ И ПАРКИРАНЕ
Достъпът до къщите е осигурен от две граничещи улици. Всяка къща разполага с едно паркомясто и навес с 8 места за велосипеди.
КОНСТРУКЦИЯ И МАТЕРИАЛИ
- Носеща конструкция – стоманобетон.
- Стени – фасадни от керамични блокове (25 см) с топлоизолация (EPS, XPS, минерална вата – 10 см). Преградни стени от керамични блокове (12 см) с мазилка и латекс.
- Покрив – плосък, с топло- и хидроизолация.
ПОЖАРНА БЕЗОПАСНОСТ
Къщите са от клас Ф1.3 с III степен на огнеустойчивост. Всяка има отделно стълбище и самостоятелен изход. Входните врати могат да се отварят обратно на посоката на евакуация.
ТЕХНИКО-ИКОНОМИЧЕСКИ ПОКАЗАТЕЛИ
- РЗП на парцела – 1069.26 кв.м
- РЗП на всяка къща – 267.31 кв.м
- Партер – 80.36 кв.м
- Първи етаж – 113.47 кв.м
- Втори етаж – 73.48 кв.м
ОЧАКВА СЕ ДО КРАЯ НА 2025 ДА БЪДАТ ЗАВЪРШЕНИ. НОВИТЕ СОБСТВЕНИЦИ ЩЕ МОГАТ ДА ГИ ИЗПОЛЗВАТ ЛЯТОТО НА 2026
За повече информация или оглед на имота звъннете на посочения телефон и цитирайте кода на обявата :
КОД :367021
Направи запитване
Заяви LIVE оглед
Попълни формата за LIVE оглед, а ние ще се свържем с теб!











