3-стаен Бургас
- 186 275 € 1 179 €/м2
-
364 322 лв.
2 306 лв./м2 - 158 м2 3-стаен
- Код: 380451 52 гледания
3-стаен апартамент с отлична локация в ж.к. Меден рудник
КОД: 380451
Имоти Премиер представя стилен 3-стаен апартамент с отлична локация в ж.к. Меден рудник – зона В, гр. Бургас.
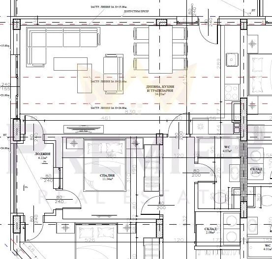
Имаме удоволствието да ви представим този отличен имот – 3-стаен апартамент с обща площ 158 кв.м., построен през 2026 г., разположен в модерна жилищна сграда с 2 асансьора.
Имотът впечатлява с простор и функционално разпределение, създадено за съвременен семеен живот.
Състои се от:
• Светла всекидневна с кухненски бокс и трапезария
• Две комфортни спални
• Баня с тоалетна
• Един удобен балкон
• Коридор/антре
Жилището предлага баланс между комфорт и практичност, с възможност за обособяване на уютни зони за работа и отдих. Просторът позволява гъвкавост в обзавеждането и осигурява приятно усещане за светлина и въздух.
Разположен е в поддържана и тиха част на Меден рудник – зона В, с бърз достъп до търговски обекти, училища, детски градини и спирки на градския транспорт. Атмосферата в района съчетава градски удобства с комфортно ежедневие и всички нужни услуги на пешеходно разстояние. Перфектен избор за семейства и за хора, които търсят качество, функционалност и сигурност в нова сграда.
Не просто апартамент, а дом със стил, простор и възможности.
Квартал Меден рудник – зона В предлага разнообразни магазини, аптеки и обслужващи обекти, както и зелени площи за отдих.
В близост има удобен градски транспорт, училища и детски градини, осигуряващи комфорт и бърза връзка с центъра на Бургас.
Код на обявата № 380451
Направи запитване
Заяви LIVE оглед
Попълни формата за LIVE оглед, а ние ще се свържем с теб!


















