Къща Бояна, София
-
2 775 323 лв.
4 205 лв./м2 - 1 419 000 € 2 150 €/м2
- 660 м2 Къща
- Код: 341962 2054 гледания
Луксозна къща в затворен комплекс във в.з. Киноцентъра
КОД: 341962
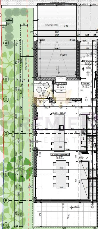
Имоти Премиер представя на Вашето внимание луксозна къща в затворен комплекс от седем еднофамилни къщи във вилна зона ,,Киноцентъра“. Състои се от:
Сутерен: Гараж за четири автомобила, помещение за газов котел с термопомпа, зарядна станция.
Партерен етаж: Кухненски бокс и трапезария, тоалетна, мокро помещение.
Първи етаж: дневна, две спални, две бани с тоалетна.
Втори етаж: спалня с дрешник, баня с тоалетна, тераса; втора спалня с баня и тоалетна и тераса към нея.
Комплексът ще разполага с денонощна СОТ и жива охрана и цялостна поддръжка. На етап -АКТ 14, като предстои през месец март 2023г. АКТ 15 и 16.
КОД НА ОБЯВАТА:341962
Направи запитване
Заяви LIVE оглед
Попълни формата за LIVE оглед, а ние ще се свържем с теб!














